About Pram Paradise Estate

Modern & Functional
Studio Apartments

Our studio apartments at Pram Paradise Estate are crafted to provide an efficient, stylish, and comfortable living experience. Perfect for young professionals, students, and individuals who value simplicity and elegance, each unit maximizes space through smart layout planning and modern interior design.

These homes are located in a peaceful and fast-growing community, offering residents easy access to essential amenities and major routes. With high-quality finishing, natural lighting, and a well-structured design, our studio apartments deliver the ideal balance between affordability and contemporary living.

Pram Paradise Estate Studio Apartment
Our Apartments

Explore Our Studio Unit

Our studio apartment is an excellent choice for individuals seeking a compact yet elegant living space. Thoughtfully designed to offer functionality, comfort, and privacy, it is the perfect blend of modern architecture and smart spatial usage.

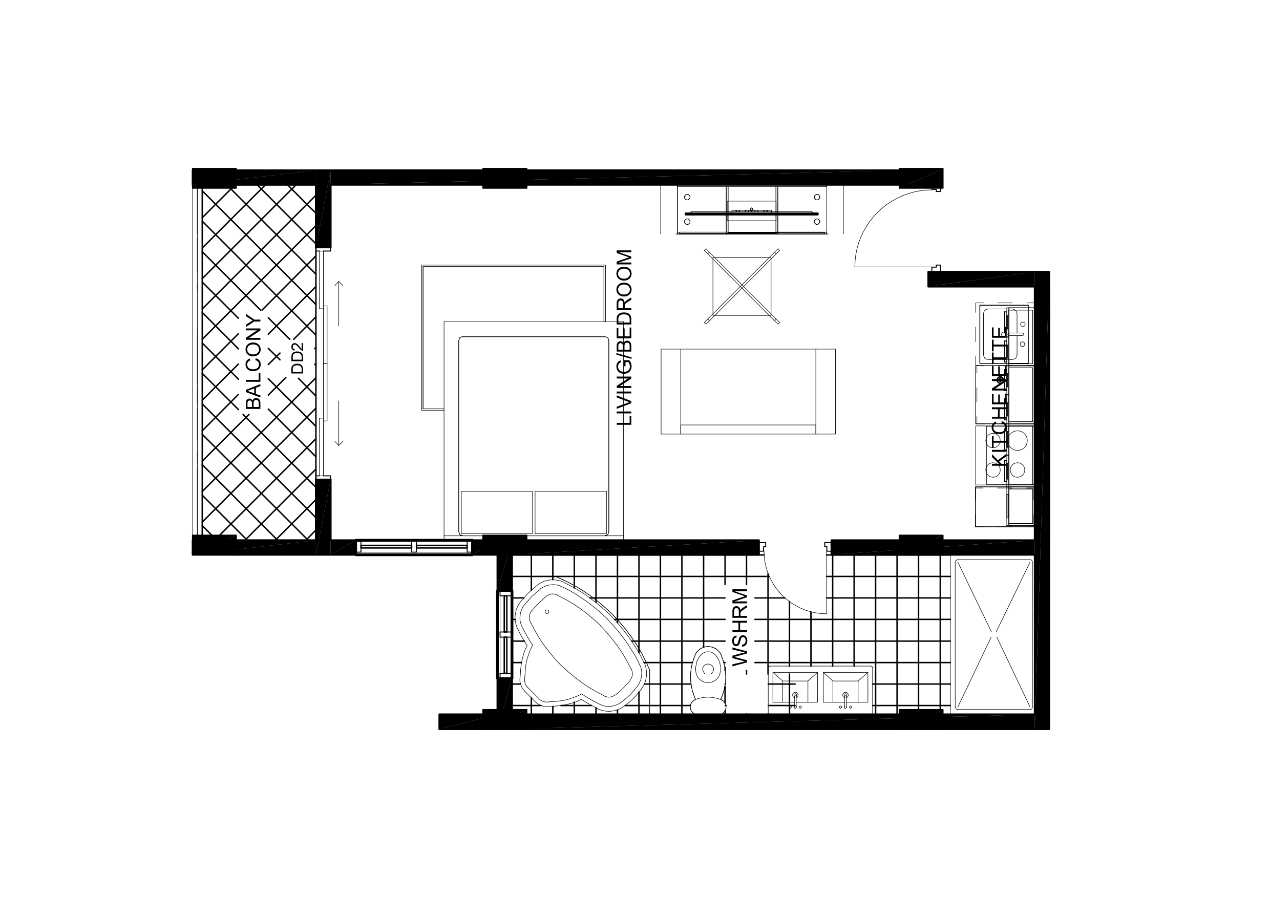
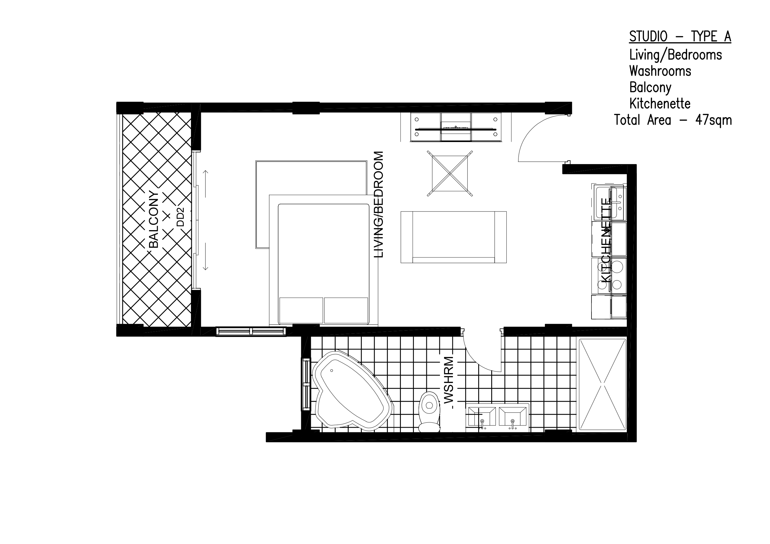
TYPE A

Premium Studio Apartment

Type A is the largest of our studio units, offering a more spacious open-plan layout ideal for individuals who prefer extra comfort and flexibility. It is perfectly suited for young professionals and high-yield renters.

  • Open-Plan Living/Bedroom Area
  • 1 Washroom
  • 1 Balcony / Terrace
  • Kitchenette
  • Total Area: 47 sqm

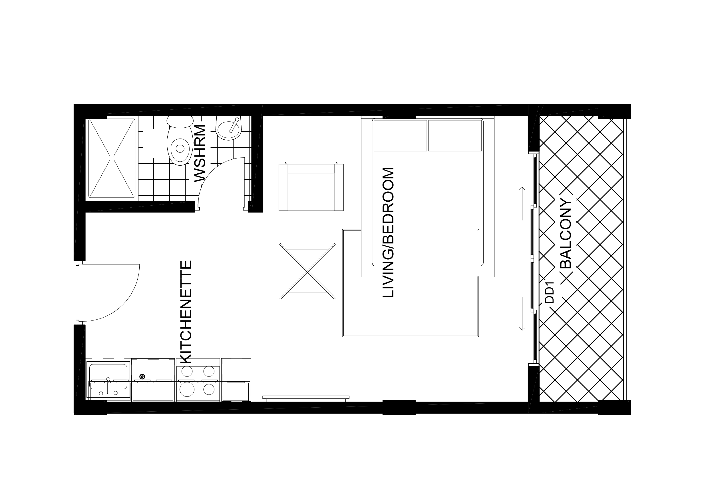
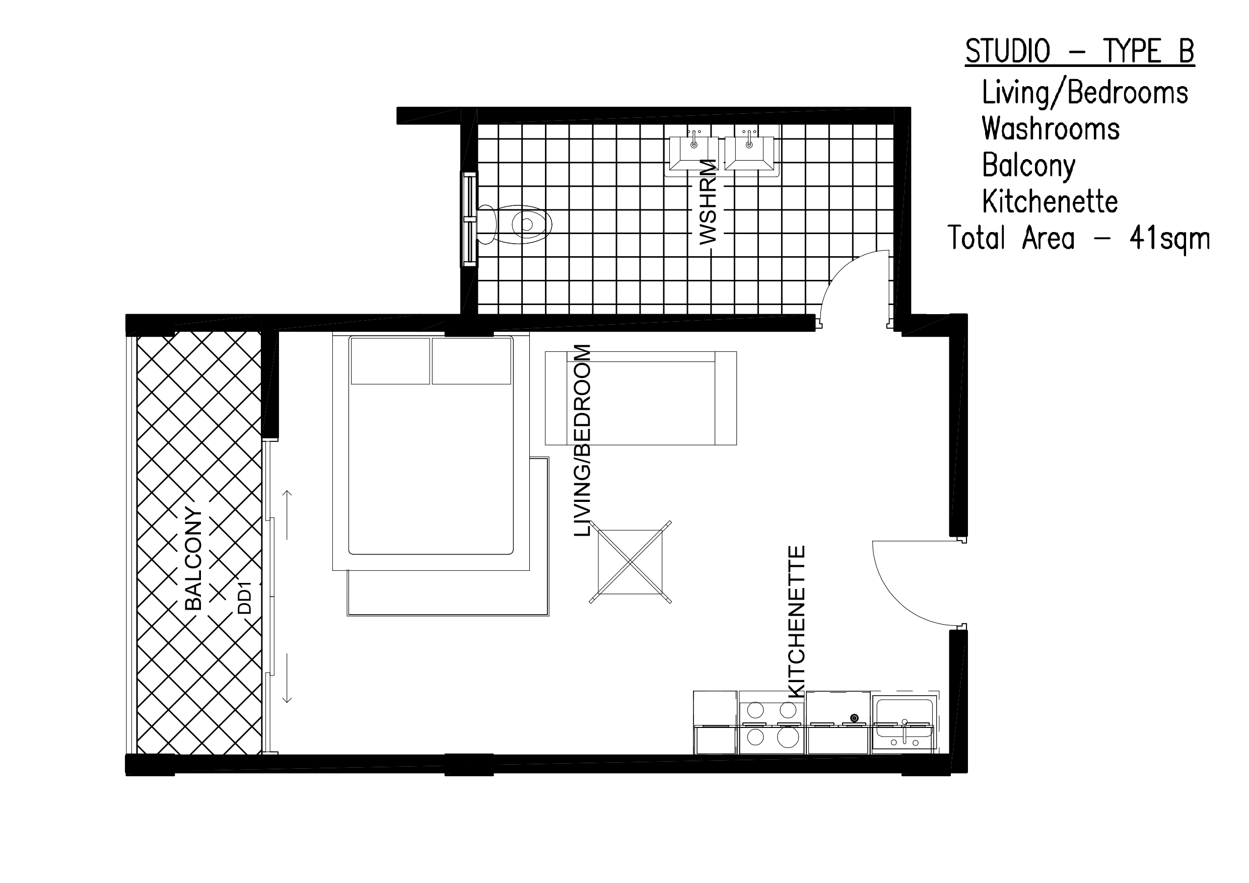
TYPE B

Standard Studio Apartment

Type B provides a well-balanced layout with efficient use of space. Designed with practicality in mind, it combines comfort and function, making it a strong choice for renters seeking affordability with modern appeal.

  • Open-Plan Living/Bedroom Area
  • 1 Washroom
  • 1 Balcony / Terrace
  • Kitchenette
  • Total Area: 41 sqm

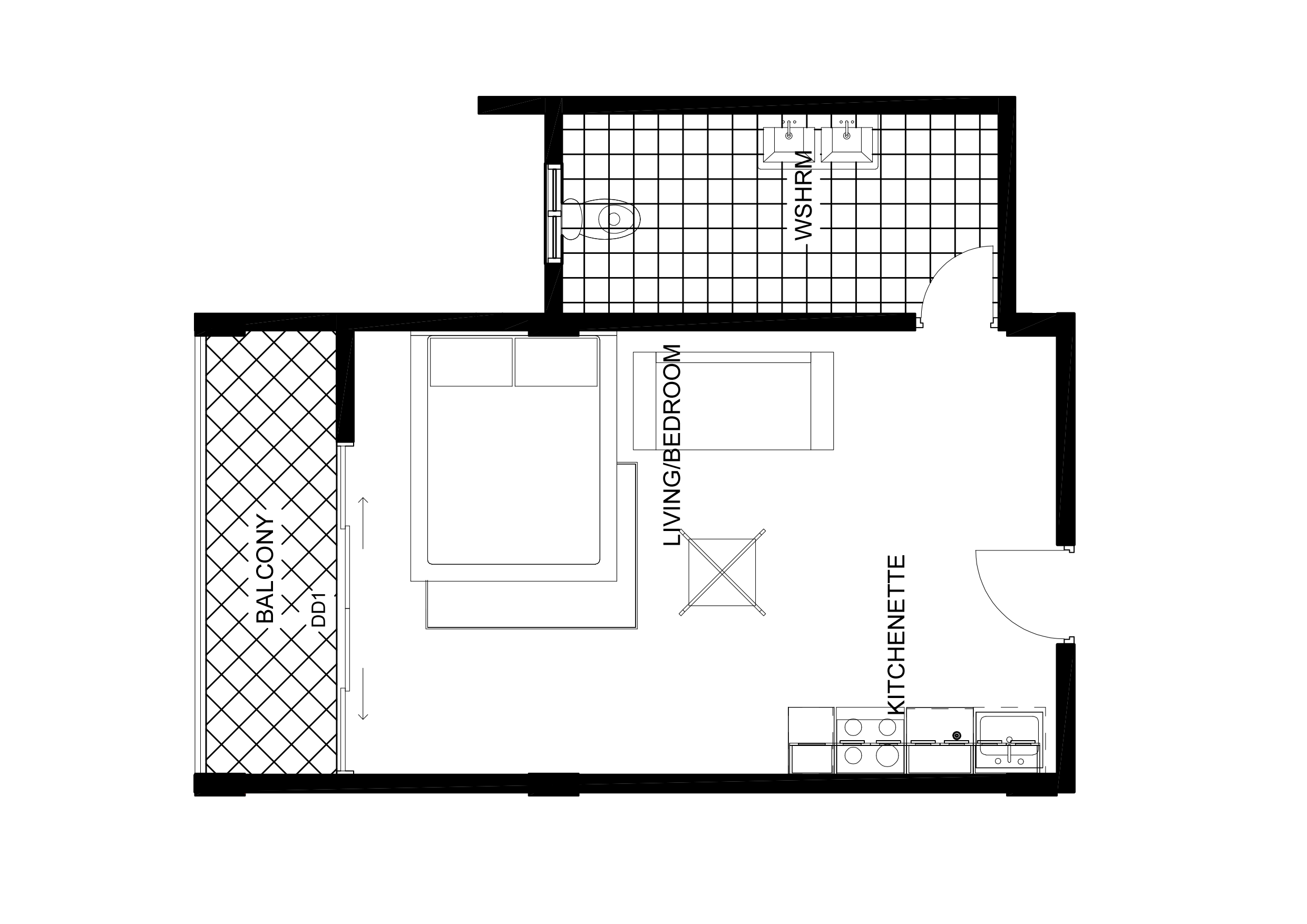
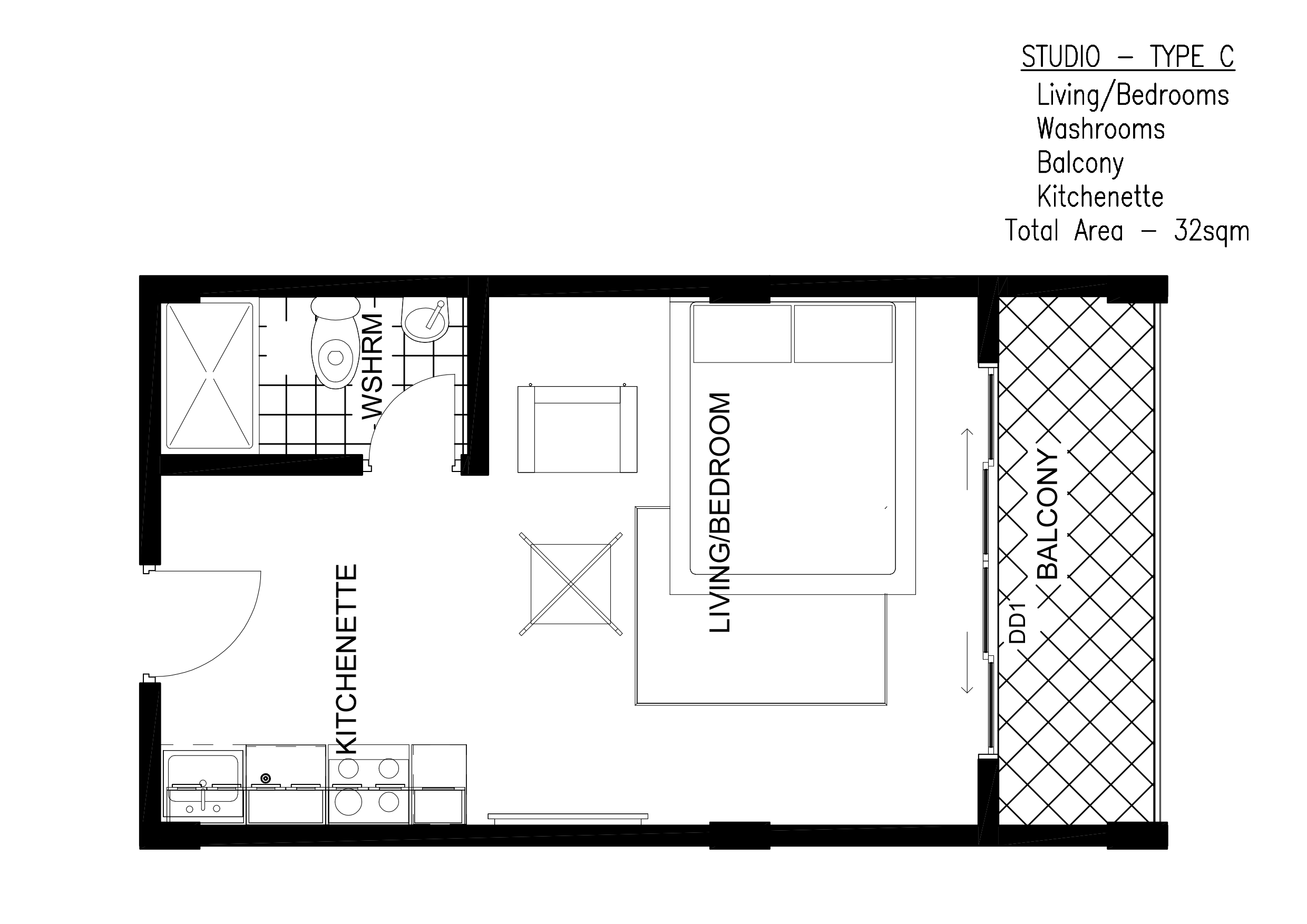
TYPE C

Compact Studio Apartment

Type C is the most compact and affordable studio option, thoughtfully designed to deliver comfort within a smartly optimized space. It is ideal for students, young workers, and investors targeting quick rental turnover.

  • Open-Plan Living/Bedroom Area
  • 1 Washroom
  • 1 Balcony / Terrace
  • Kitchenette
  • Total Area: 32 sqm
×




Why Choose Us

Built for Comfort, Style & Modern Living

Our 1-bedroom apartments are designed with precision, comfort, and elegance. From high-quality finishing to functional space planning, every detail ensures a premium living experience suited for both personal and investment purposes.

Modern Architecture

Our apartments feature contemporary layouts, high-quality materials, and well-ventilated spaces that elevate everyday living.

High Security Assurance

With CCTV surveillance, controlled access, and secure entry points, your safety and privacy are always preserved.

Premium Finishing

Quality flooring, modern kitchens, stylish bathrooms, and durable fittings ensure long-lasting beauty and value.

Architectural Quality
95%
Client Satisfaction
98%
Quality of Finishing
92%
Functional Space Planning
96%





0

Apartments Completed

0

Happy Residents

0

Properties Under Development

0

Years of Real Estate Excellence