About Pram Paradise Estate

Modern & Comfortable
1-Bedroom Apartments

Our 1-bedroom apartments at Pram Paradise Estate are thoughtfully designed to provide comfort, privacy, and modern living. Each unit features spacious interiors, high-quality finishes, and a serene environment ideal for individuals and young couples.

Located in a rapidly developing area, our estate blends luxury with affordability, ensuring that residents enjoy a peaceful lifestyle with easy access to essential amenities and future developments.

Pram Paradise Estate 1 Bedroom Apartment
Our Apartments

Explore Our 1-Bedroom Options

We offer two thoughtfully designed 1-bedroom apartment types, each crafted to provide comfort, functionality, and modern living. Choose the layout that best fits your lifestyle and space needs.

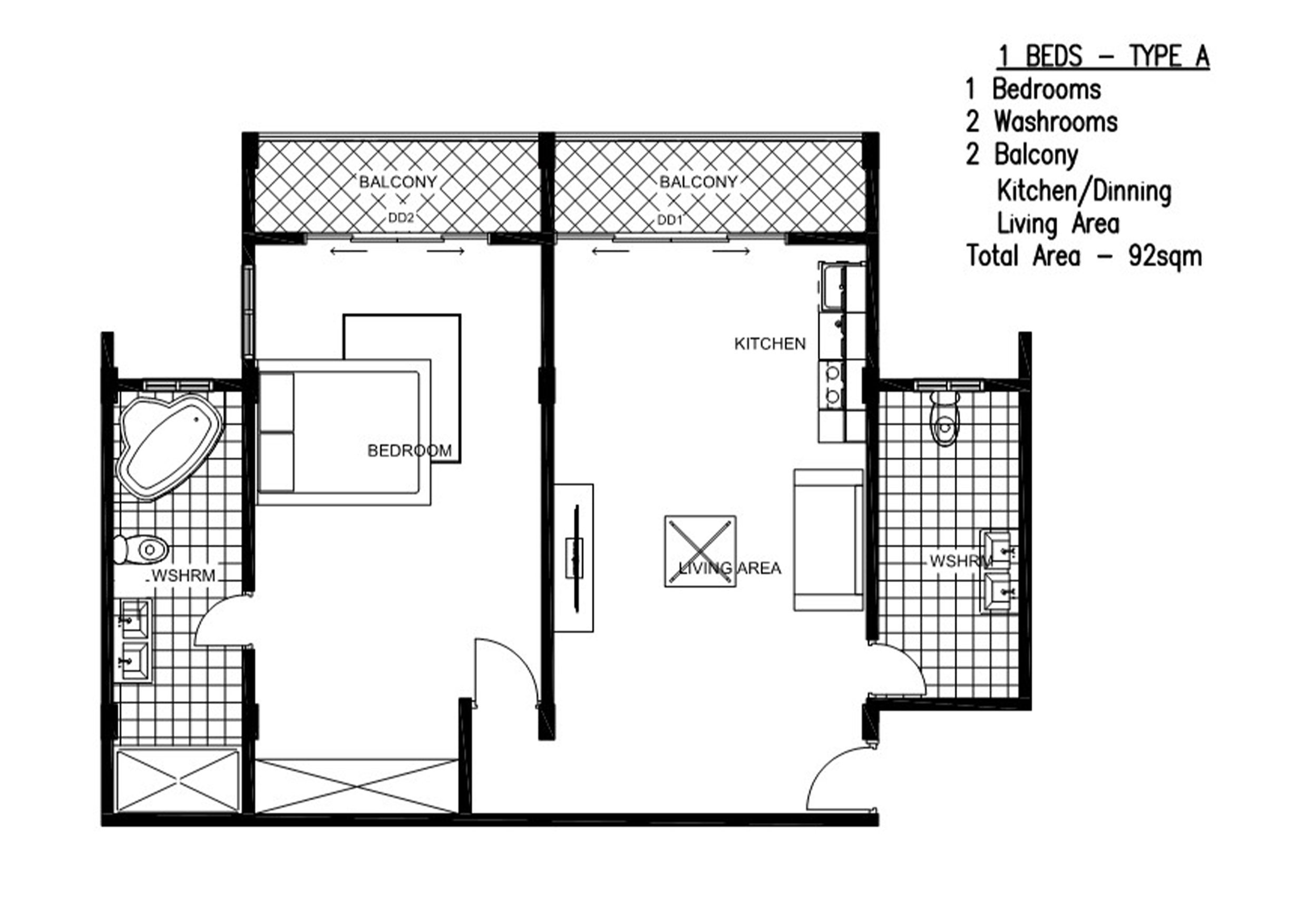
TYPE A

Premium 1-Bedroom

A refined 1-bedroom apartment offering a more compact but elegant layout with upgraded features for enhanced comfort.

  • 1 Bedroom
  • 2 Washrooms
  • 2 Balconies
  • Kitchen / Dining
  • Living Area
  • Total Area: 92 sqm

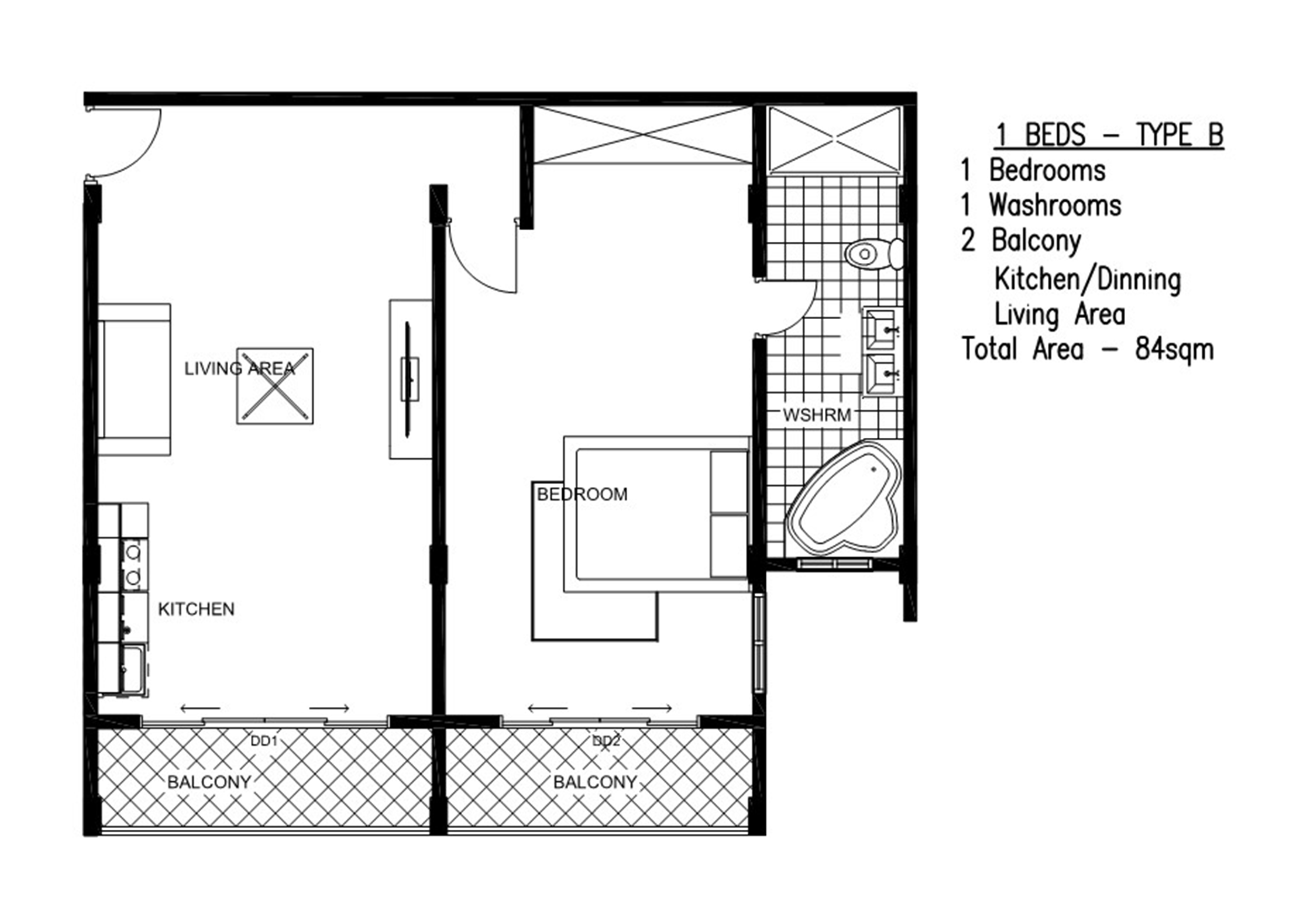
TYPE B

Standard 1-Bedroom

This standard 1-bedroom apartment offers a spacious and efficient layout tailored for comfortable living.

  • 1 Bedroom
  • 1 Washroom
  • 2 Balconies
  • Kitchen / Dining
  • Living Area
  • Total Area: 84 sqm
×




Why Choose Us

Built for Comfort, Style & Modern Living

Our 1-bedroom apartments are designed with precision, comfort, and elegance. From high-quality finishing to functional space planning, every detail ensures a premium living experience suited for both personal and investment purposes.

Modern Architecture

Our apartments feature contemporary layouts, high-quality materials, and well-ventilated spaces that elevate everyday living.

High Security Assurance

With CCTV surveillance, controlled access, and secure entry points, your safety and privacy are always preserved.

Premium Finishing

Quality flooring, modern kitchens, stylish bathrooms, and durable fittings ensure long-lasting beauty and value.

Architectural Quality
95%
Client Satisfaction
98%
Quality of Finishing
92%
Functional Space Planning
96%





0

Apartments Completed

0

Happy Residents

0

Properties Under Development

0

Years of Real Estate Excellence